Swipe right to see all data →

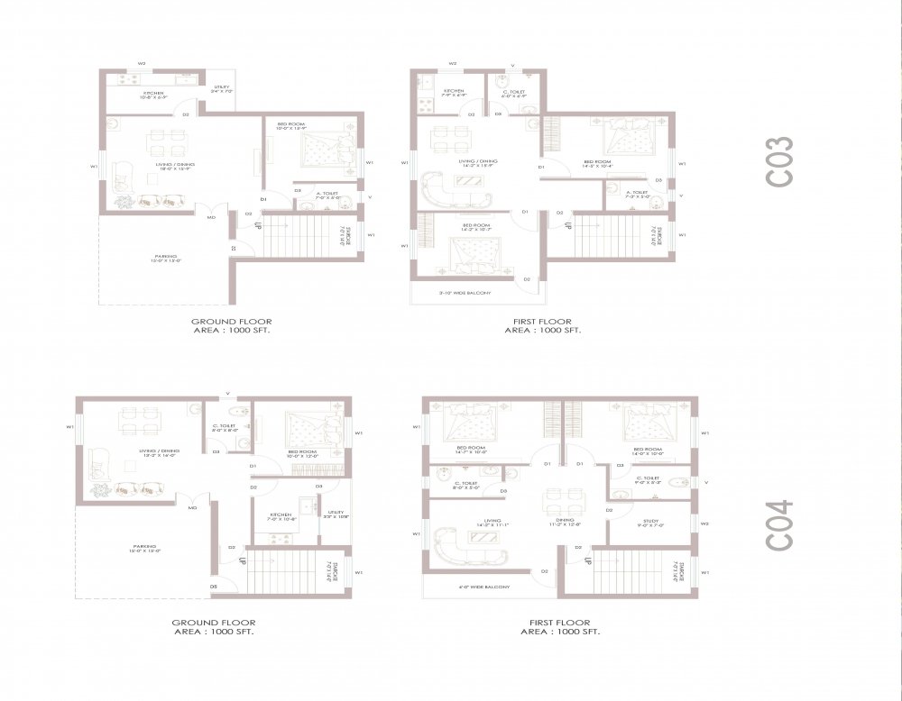
Unit Configuration
Unit Type SBA Land / Plot Area Bedroom Bathroom Balcony Parking
3bhk 1600 1200 3 3 2 2
3bhk 1600 1350 3 3 2 2
4bhk 1700 1490 3 3 3 2
4bhk 2000 1900 4 4 2 2
5bhk 2000 2500 4 4 3 2
Description

 Newly constructed BDA & RERA approved Gated community with all Modern Amenties Residental house at Patia Kiit University, Bhubaneswar Odisha

Ready to possession soon, Multi Acres project with several lifestyle and luxurious amenities Construction in full swing.30 feet internal road with plantation Multi layered security system Vaastu complaints Surrounded by lush greens Cross ventilated homes with abundant natural lights Kiit squree Patia Bhubaneswar west region near to reputed Schools Colleges Near to Hospitals Near to entertainment zones like

Project Plan
Property Address
  • Address: Patia Traffic squree, KIIM Campus, Infocity Road, Patharagadia, Bhubaneswar, Odisha
  • Location : PATIA
  • City : Bhubaneswar
Property Details
  • Property Age: Under Construction,
  • Possession: asking me
  • Facing: East, West, North, South, North - East,
  • Total Floors: 2
  • Property On Floor: 1,
  • Water Supply: Boring Water,
  • Approved By: BDA & RERA
  • RERA ID:
  • Power Backup: Partial,
Amenities
  • Swimming Pool
  • Visitor Parking
  • Gymnasium
  • Club House
  • Temple
  • Vaastu Compliant
  • Children Play Area
  • Jogging and Strolling Track
  • Shopping center
  • Sewage Treatment plant
  • CCTV Surveillance
  • 24 Hour Security
  • 24 Hour Water Supply
  • A-3 tier Security and Surveillance
Finance Available
  • SBI Home Loans
  • PNB Housing Finance
  • AXIS Bank
  • HDFC
  • Bank of Baroda
  • LIC Housing Finance
  • Tata Capital
  • Any
Pricing
  • Property Price: 1.67 Cr TO 2.30Cr
  • Booking Amount: 500000
  • Negotiable: Yes
About Developer

E RESIDENCY a Luxury residential home at Patharagadia Bhubaneswar

Completed Projects
slider-listing
Property Video
I am Interested In